Dewsbury Road

London

 

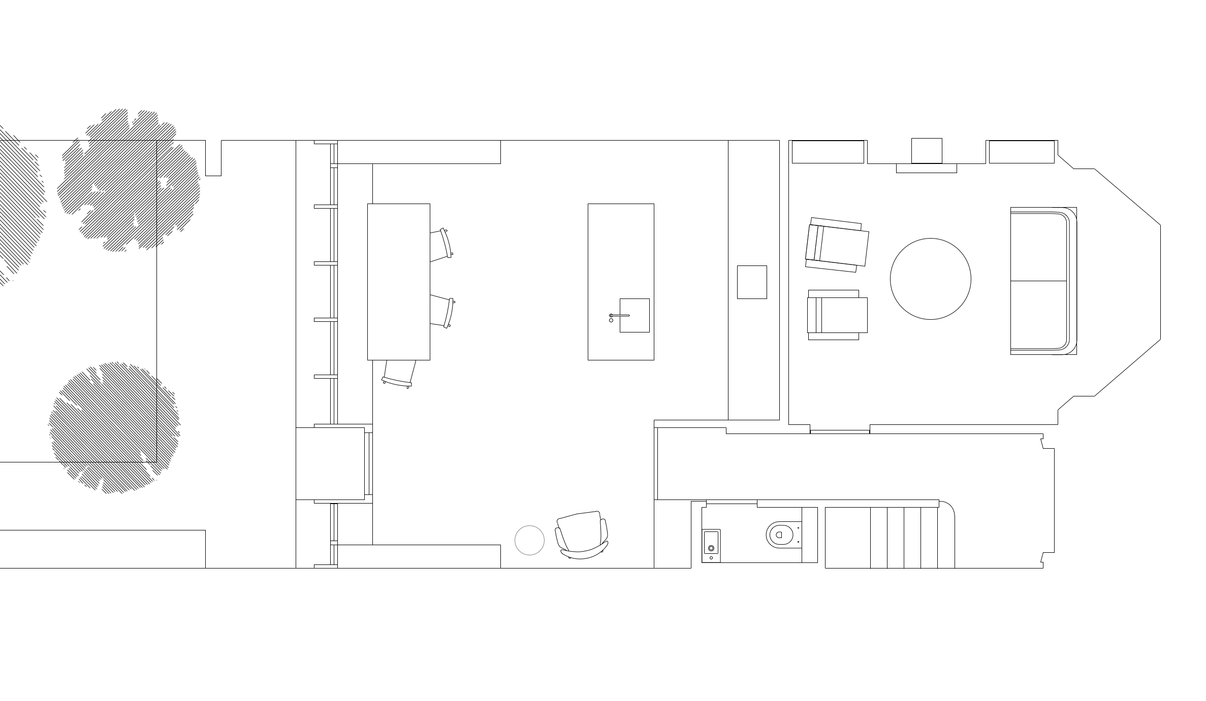
This addition at the rear of a home in Dollis Hill creates a unified space for the kitchen and dining and places emphasis on the connection with the garden. A long bench is incorporated into the façade of deep vertical oak fins whose rhythm on a brick plinth provides direct views out yet sideways privacy. All of the timber elements were fabricated and pre-assembled in a family-run workshop. Connections between the various modules were designed in such a way that they could be transported to the site and easily slotted back together.

Second Prize - Don't Move Improve, 2018, New London Architecture

Shortlisted - Wood Awards, 2018, Small Project

 
OSSA_DewsburyRd8.jpg
OSSA_DewsburyRd3.jpg
OSSA_DewsburyRd2.jpg
OSSA_DewsburyRd7.jpg
OSSA_DewsburyRd6.jpg
RG931e_OSSA-5.jpg
OSSA_DewsburyRd9.jpg
OSSA_DewsburyRd10.jpg
OSSA_DewsburyRd5.jpg
 
OSSA_Dewsbury_Plan.png
 
19-2.jpg
 

Photography : Rory Gardiner